Moradia em T3 em banda em Faro
O novo e exclusivo empreendimento que capta o estilo de vida algarvio na sua plenitude!
A primeira fase conta com 14 moradias tipo T3 em banda, de arquitetura contemporânea e de uma beleza inconfundível, com acabamentos de primeira qualidade.
Viver num local de sonho, perto de tudo, junto à natureza e a poucos minutos da praia.
Poderá escolher entre várias opções, nomeadamente cave e piscina.
Cada moradia foi pensada como única, apesar de ser um conjunto de moradias em banda, cada uma tem a sua assinatura.
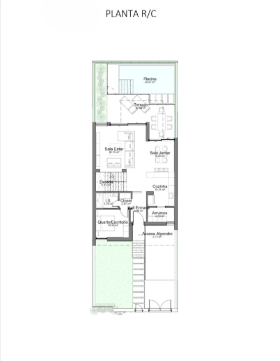
Ao nível do R/C encontra uma ampla sala de estar e de jantar, cozinha semi-aberta, um quarto, uma casa de banho, terraço exterior, jardim e piscina.
No primeiro piso situam-se 2 quartos em suite e 2 fabulosos terraços (possibilidade de alterar para tipologia T4, caso seja o que necessita).
A cave é opcional e terá lugar para duas viaturas e uma arrecadação.
A nova e moderna urbanização é uma lufada de ar fresco no coração do Algarve, perto de todos os principais serviços, supermercados e típicos restaurantes de cozinha algarvia.
Perfeito não só para habitação própria permanente, como ideal para investimento ou segunda habitação.
Com uma área de 68.200 m2, sendo um dos maiores empreendimentos de Faro.
Para a primeira fase do projeto são 28 lotes, para a segunda fase será composto por 50 unidades residenciais, incluindo 28 apartamentos de um piso, 14 moradias de dois pisos e 8 moradias isoladas, todas de arquitetura contemporânea concebida para criar um amplo empreendimento integrado.
Cada propriedade tem a sua própria piscina, espaço de garagem com espaçosas áreas verdes comuns. As cozinhas e casas de banho estão totalmente equipadas com eletrodomésticos de última geração e materiais cuidadosamente selecionados.
A poucos minutos da Praia de Faro, da Ria Formosa, do Aeroporto, da Universidade e do centro de Faro, numa localização única e cativante.
Frente ao parque natural, rodeado de pinheiros e zonas verdes, onde pode fazer maravilhosos passeios a pé, chegar à Quinta do Lago e passadiço que conduz ao triângulo dourado, passar pelas salinas e usufruir do ar puro.
Percurso de bicicleta e caminhada até à Ilha de Faro:
Alma de Faro está rodeada por trilhos para caminhadas ou ciclismo até uma das melhores praias do Algarve, Ilha de Faro ou Ilha de Faro.
Todo verão, moradores e turistas se reúnem na ilha, desfrutando de seus bares, restaurantes, comodidades e atividades aquáticas.
Apenas 2,8 km de distância.
Golfe de classe mundial:
Os golfistas estarão à vontade com os inúmeros campos de golfe disponíveis na zona envolvente, incluindo no Triângulo Dourado (nomeadamente os campos de Pinheiros Altos, Quinta do Lago Sul, Quinta do Lago Norte, Laranjal, Royal e Ocean).
Marque já a sua visita!
A primeira fase conta com 14 moradias tipo T3 em banda, de arquitetura contemporânea e de uma beleza inconfundível, com acabamentos de primeira qualidade.
Viver num local de sonho, perto de tudo, junto à natureza e a poucos minutos da praia.
Poderá escolher entre várias opções, nomeadamente cave e piscina.
Cada moradia foi pensada como única, apesar de ser um conjunto de moradias em banda, cada uma tem a sua assinatura.
Ao nível do R/C encontra uma ampla sala de estar e de jantar, cozinha semi-aberta, um quarto, uma casa de banho, terraço exterior, jardim e piscina.
No primeiro piso situam-se 2 quartos em suite e 2 fabulosos terraços (possibilidade de alterar para tipologia T4, caso seja o que necessita).
A cave é opcional e terá lugar para duas viaturas e uma arrecadação.
A nova e moderna urbanização é uma lufada de ar fresco no coração do Algarve, perto de todos os principais serviços, supermercados e típicos restaurantes de cozinha algarvia.
Perfeito não só para habitação própria permanente, como ideal para investimento ou segunda habitação.
Com uma área de 68.200 m2, sendo um dos maiores empreendimentos de Faro.
Para a primeira fase do projeto são 28 lotes, para a segunda fase será composto por 50 unidades residenciais, incluindo 28 apartamentos de um piso, 14 moradias de dois pisos e 8 moradias isoladas, todas de arquitetura contemporânea concebida para criar um amplo empreendimento integrado.
Cada propriedade tem a sua própria piscina, espaço de garagem com espaçosas áreas verdes comuns. As cozinhas e casas de banho estão totalmente equipadas com eletrodomésticos de última geração e materiais cuidadosamente selecionados.
A poucos minutos da Praia de Faro, da Ria Formosa, do Aeroporto, da Universidade e do centro de Faro, numa localização única e cativante.
Frente ao parque natural, rodeado de pinheiros e zonas verdes, onde pode fazer maravilhosos passeios a pé, chegar à Quinta do Lago e passadiço que conduz ao triângulo dourado, passar pelas salinas e usufruir do ar puro.
Percurso de bicicleta e caminhada até à Ilha de Faro:
Alma de Faro está rodeada por trilhos para caminhadas ou ciclismo até uma das melhores praias do Algarve, Ilha de Faro ou Ilha de Faro.
Todo verão, moradores e turistas se reúnem na ilha, desfrutando de seus bares, restaurantes, comodidades e atividades aquáticas.
Apenas 2,8 km de distância.
Golfe de classe mundial:
Os golfistas estarão à vontade com os inúmeros campos de golfe disponíveis na zona envolvente, incluindo no Triângulo Dourado (nomeadamente os campos de Pinheiros Altos, Quinta do Lago Sul, Quinta do Lago Norte, Laranjal, Royal e Ocean).
Marque já a sua visita!
Características da Propriedade
- Cave
- Cozinha Equipada
- Garagem
- Pré-instalação Ar-Condicionado
- Terraço
- Vidros Duplos
- Jardim
- Paineis Solares
- Piscina
- Certificação Energética: A
- Em Construção
- Novo