Land with approved project for the construction of 10 villas in Albufeira
Discover this exceptional plot of land in Olhos de Água, just a stone's throw from the prestigious Pine Cliffs Resort and just 7 minutes from the stunning Falésia Beach, one of the most iconic in the Algarve.
Located in a serene and privileged area, it combines the tranquility of nature with the convenience of being close to shops, services and the charming landscapes of the region.
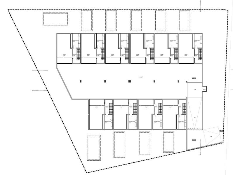
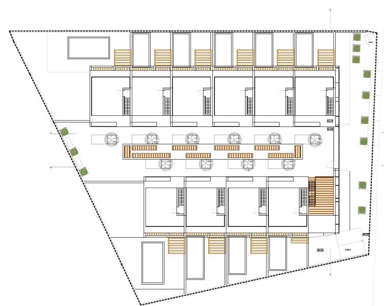
This land has an approved project for the construction of 10 townhouses, each with a private pool, designed to provide comfort, privacy and a sophisticated lifestyle. The T3+1 villas are spread over three floors, including the basement, with a generous average area of 160 m², in addition to the basement.
With a total construction area of approximately 1,824 m², this is an unmissable investment opportunity in one of the most valued areas of Albufeira. Ideal for those looking for profitability, exclusivity and a premium location in the heart of the Algarve.
Located in a serene and privileged area, it combines the tranquility of nature with the convenience of being close to shops, services and the charming landscapes of the region.
This land has an approved project for the construction of 10 townhouses, each with a private pool, designed to provide comfort, privacy and a sophisticated lifestyle. The T3+1 villas are spread over three floors, including the basement, with a generous average area of 160 m², in addition to the basement.
With a total construction area of approximately 1,824 m², this is an unmissable investment opportunity in one of the most valued areas of Albufeira. Ideal for those looking for profitability, exclusivity and a premium location in the heart of the Algarve.
Property Features
- Walking distance to beach
- Energetic Certification: Exempt
- For Construction
Downloads
- SR031056PlantaConstruoemPatAlbufeira.jpg
- SR031056PlantaTerrenoparaConstruoemPatAlbufeira11.jpg
- SR031056PlantaTerrenoparaConstruoemPatAlbufeira12.jpg
- SR031056PlantaTerrenoparaConstruoemPatAlbufeira13.jpg
- SR031056PlantaTerrenoparaConstruoemPatAlbufeira14.jpg
- SR031056PlantaTerrenoparaConstruoemPatAlbufeira15.jpg