Urban Land of 3,275 m² with Approved Project for 4 Bedroom Villa with Swimming Pool — Near Loulé
We present an excellent opportunity to build your dream home.
This urban land, with 3,275 m², is located in a quiet area, with some sea views and just a 3-minute drive from the center of Loulé.
Access is via tarmac road and the plot already has essential infrastructure: water, electricity and sewage.
There is currently a detached ruin with 71 m² on the site, including a project for the construction of a 4 bedroom single storey house with basement, garage and swimming pool.
THE PROJECT FORESEES:
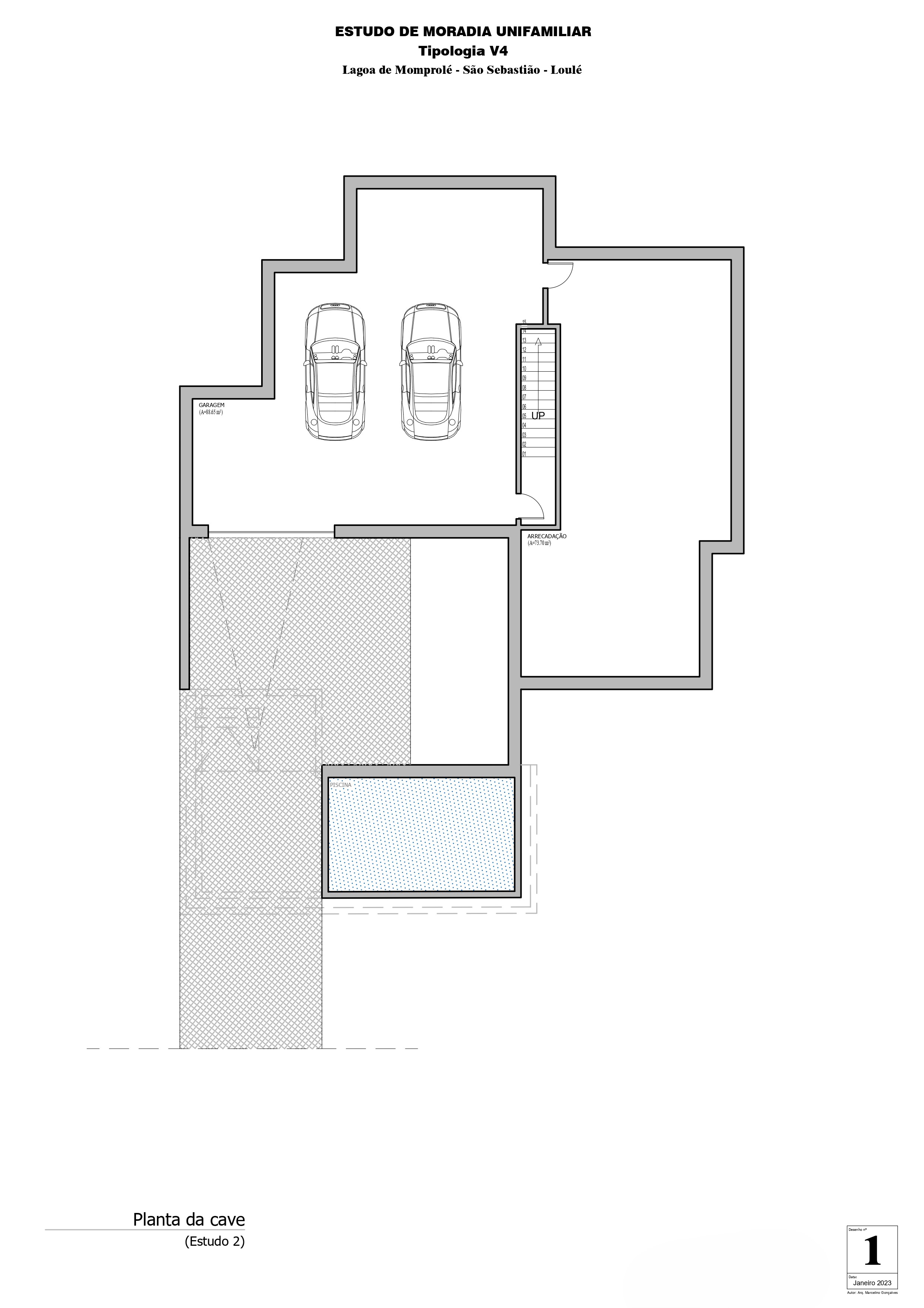
Basement
- Garage with 88 m²
- Large multifunctional space with 73 m²
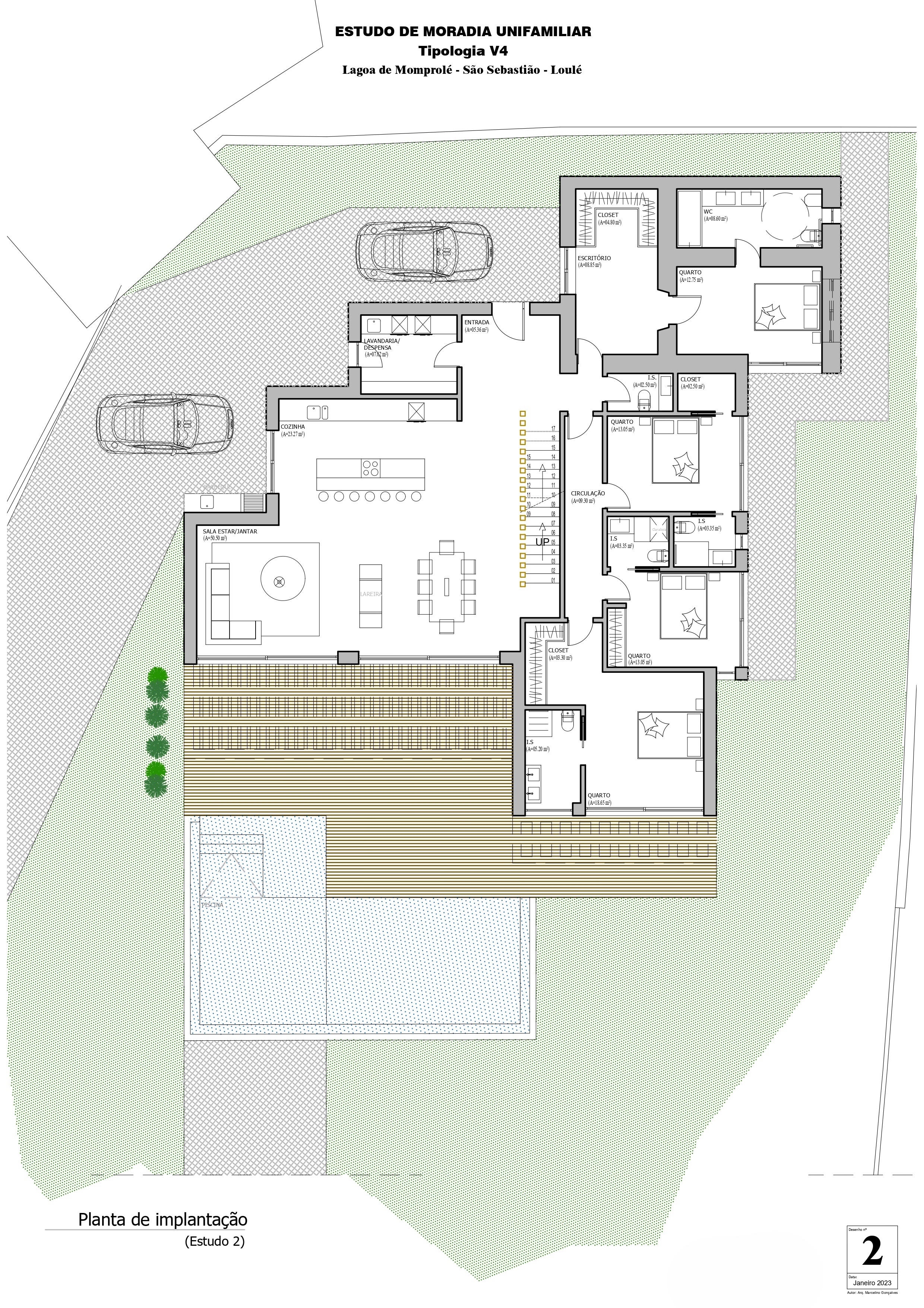
Ground Floor
- Entrance hall
- Laundry
- Social bathroom
- Living room and kitchen in open space with 73.7 m², with direct access to the outside, swimming pool and patio
- Master suite with office and walk-in closet
- 3 additional suites, two of them with walk-in closets
This is the ideal place for those looking for privacy, tranquility and proximity to the city, while still remaining within walking distance of the beaches of Vilamoura and Quarteira.
Take advantage of this unique opportunity. Come and see this fantastic project and imagine your future home in this privileged setting.
This urban land, with 3,275 m², is located in a quiet area, with some sea views and just a 3-minute drive from the center of Loulé.
Access is via tarmac road and the plot already has essential infrastructure: water, electricity and sewage.
There is currently a detached ruin with 71 m² on the site, including a project for the construction of a 4 bedroom single storey house with basement, garage and swimming pool.
THE PROJECT FORESEES:
Basement
- Garage with 88 m²
- Large multifunctional space with 73 m²
Ground Floor
- Entrance hall
- Laundry
- Social bathroom
- Living room and kitchen in open space with 73.7 m², with direct access to the outside, swimming pool and patio
- Master suite with office and walk-in closet
- 3 additional suites, two of them with walk-in closets
This is the ideal place for those looking for privacy, tranquility and proximity to the city, while still remaining within walking distance of the beaches of Vilamoura and Quarteira.
Take advantage of this unique opportunity. Come and see this fantastic project and imagine your future home in this privileged setting.
Property Features
- Energetic Certification: Exempt
- For Construction